宮古町貸店舗 L-1
up

賃料
38.5万円 (税込) (うち消費税3.5万円)
店舗(建一部)
共益費・管理費
11,000円
敷金
2ヶ月
礼金
1ヶ月
更新料
1ヶ月
所在地 群馬県伊勢崎市宮子町  宮古町貸店舗
交通 JR両毛線 駒形駅 徒歩3200m
築年月 2019/07 新築/中古 中古
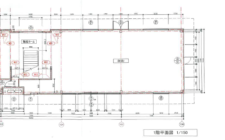
面積 125.32m² 坪数 37.91坪
計測方法 向き
建物階数 地上2階  部屋階数 1階
部屋/区画番号 L-1 総戸/区画数 4
建物構造 鉄骨造
駐車場 空有 共同駐車場有り 取引態様
引渡/入居時期 期日指定 2026/2 上旬 現況 居住中
周辺環境
設備・条件
物件番号
自社物 先物 状態 空有
特記事項 ドライブスルー付きのデザイナーズ物件!幹線道路沿いで利用しやすいので集客力も抜群です。 入居中ですが、内覧可能なのでぜひお問い合わせください☆
※物件掲載内容と現況に相違がある場合は現況を優先と致します。

問い合わせ先

TEL027-226-6555

住所群馬県前橋市表町2-23-12

営業時間9:30~17:30 日曜祝日 10:00~17:00

定休日毎週水曜日

免許番号群馬県知事 (3) 第7097号

メールでのお問い合せはこちらから

     

    必須

    必須

    詳しい内容 (希望条件・来店希望日・その他質問がございましたらご記入ください)

    必須

    必須

    必須
    This site is protected by reCAPTCHA and the Google Privacy Policy and Terms of Service apply.